保卫处、图书馆消防应急逃生演练工作方案


发布者:翁伟星    发布时间:2024-10-08    浏览次数:499

 

福州职业技术学院

2024年第三季度消防演练暨保卫处、图书馆联合消防应急逃生演练工作方案


严格落实《福建省校园安全教育实施方案》,提升学校应急疏散演练的组织和管理水平,强化学校师生消防安全意识和应急避险能力。参照《福建省学校应急疏散演练指南及实操范例》和省教育厅官网“学校安全”专栏上的急疏散演练指导视频,以“普及安全知识,增强师生安全意识”为重点,结合学校实际,定于20241016日在图书馆内外开展消防应急逃生演练以下简称演练及灭火器使用演示活动特制定方案如下:

一、演练主题

强化消防意识、筑牢校园防火墙

、演练目的

通过实战化应急疏散演练,进一步增强学生和教职工安全意识,提高逃生自救能力,在发生紧急情况时,能有序、迅速地安全疏散,确保学生和教职工的生命安全。

三、演练时间和地点

时 间:20241016

地 点:旗山校区图书馆

  1. 演练参与人员

图书馆全人员、在馆学生、新进教师、保安和物业等驻校服务人员。

五、演练过程

)观看宣传教育片、开展消防安全知识宣讲。

)演练开始,发生火险警情(15:00 开始)。

(三)组织人员安全疏散。

(四)灭火器和室内消火栓使用演练。

六、演练组织机构及人员分工

(一)演练指挥部

成立有关校领导及工作人员组成的演练指挥部,全面负责演练活动的组织领导和协调指挥工作,同时落实每位成 员在演练中的具体工作。具体名单如下:

总指挥刘春兰

总指挥黄云敦、张弼云

成员:吴祥俊、林炜庭、李文斌、张威、林永照

1.主要职责:

1.1全面负责消防疏散演练工作,总指挥亲自组织,现场指挥,确保演练效果。

1.2执行上级有关指示和命令,指挥部组成员按其所在部门的职能、职责各负其责,认真做好应急疏散工作。

1.3合理划定学校及周边疏散场地(避险场所)、疏散通道,明确应急疏散信号,设立疏散指示标志,教育学生熟悉和掌握应急疏散方案。

  1. 组织机构:

演练指挥部应下设五个小组,明确职责,落实人员。

2.1组织协调组:

负责人:吴祥俊

成员:陈凯、(消防维保人员)

职责:负责演练方案的制定,演练过程的协调指挥;信息的上传下达、对外联系等。

2.2宣传报道组:

负责人:林炜庭

成员:许丹丹

职责:负责安排演练前的宣传教育、演练的摄影、记录、计时、总结等。

2.3疏散引导组

负责人:林永照

成员:庄舒蓉、翁伟星、陈凯

职责:负责科学编制和张贴学校应急疏散路线图、应急疏散路线图等;引导、组织学生和教职工安全有序疏散;帮助伤病学生疏散并妥善安置;疏散完成后协助其他各组工作。

2.4抢险救护组

负责人:李文斌

成员:姚芳、杨亮、部分保安队员

职责:负责第一时间组织实施自救互救,抢救遇险学生和教职工,视情况抢救重要财产、档案等;检查学生身心状况,进行临时救治和必要的心理疏导,演练中发生意外事故,负责将受伤学生和教职工尽快运送到指定安全区域,并迅速联系急救中心或拨打120, 在专业医务人员到达之前,救护组应对受伤学生和教职工采取必要的救助措施,为救治伤者赢得时间。预防次生灾害发生。

2.5后勤保障组

负责人:张威

成员:卢东、物业电工

职责:负责治安保卫工作,布设演练场地,维护演练秩序,拉响演练警报、通讯、标识、广播、救助等演练所需物资装备的准备、检查、恢复学校水电、通讯等后勤保障设施。

各小组负责人应统一协调本组工作。各小组演练前应充分了解本小组职责,并将职责落实到每位成员演练中按照职责开展工作,在疏散完成后各小组负责人应及时向总指挥进行反馈、汇报。

七、演练前的准备工作

(一)制定演习预案,召开筹备会议,进行责任分工。

(二)演练单位进行检查、动员和布置。

(三)确定各疏散小组路线和程序。

(四)参与人员确定。

(五)物品需求:哨子10 个,湿纸巾帕 200 条。

(六)提前完成逃生演练工作人员培训等(观看消防知识宣传片,熟悉安全疏散路线图等)。

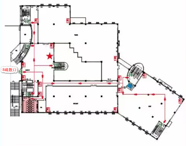
八、疏散线路

图书馆二楼


图书馆


  1. 演练流程

(一)14:00-14:30组织人员图书馆影音室集合,观看消防安全宣传片;(消防维保企业提供)

(二)14:30-14:40:消防安全知识宣讲;消防安全演练目的和流程的简要说明;(消防专业人员宣读)

(三)14:40-15:00:组织全体人员进行火灾自救逃生演练,包括疏散通道的熟悉和演练,火灾疏散示意图的宣讲等。

15:00-15:20:模拟火灾报警,组织人员进行疏散演练。在模拟火灾报警后,全体人员按照疏散路线,并遵循集中点的要求有序疏散。

(五)15:30-15:40进行消防器材实操演练,包括正确使用灭火器和消防栓进行灭火,了解和掌握不同灭火器的使用场景和注意事项。

(六)15:40-16:30:组织人员进行火灾扑救演练,以小型火灾的模拟为例,演练如何正确扑灭小范围火灾。

十、演练评估与总结

演练评估:在演练结束后,按照预定的评估标准进行演练效果评估,包括演练的实施情况、参与人员的表现、演练措施的可行性等方面。

收集反馈意见:及时收集演练参与者的反馈意见和建议,发现可能存在的问题和不足,并加以改进。

十一、其他事项

消防逃生通道:确保消防通道畅通,不得堆放任何杂物。

演练安全措施:演练过程中,要注意参与人员的人身安全,做好演练区域的安全措施。

灭火器材携带:在演练中,消防维保人员应携带灭火器材。

常态化演练:定期开展消防应急预案演练,加强日常消防安全管理和监督




保卫处 图书馆

2024108









附件1

灭火、应急疏散预案演练记录

预案名称

灭火、应急疏散预案

演练地点

图书馆

组织部门

保卫处图书馆

总指挥

刘春兰

演练时间

2024.10.16

实际时间

2024.10.16

参加

人员

保卫处、图书馆全馆人员、在馆学生、新进教师、保安和物业等驻校服务人员


演练类别

实际演练£桌面演练

£全部预案 £部分预案

£提问讨论式演练

实际演练部分:

应急疏散、灭火器使用

物资准备和人员培训情况

1.干粉灭火器80具、模拟火点3

2.在演练前组织相关教职工、学生对演练方案进行了学习布置,让大家了解掌握演练每个环节

演练过程

描述

1.演练开始前,全体人员在会议室集结,由指挥部人员对演练活动进行了详细的动员部署消防专业人员对演练活动的具体安排进行了培训说明,确保每位参与者都明确自己的职责和任务

2.下午3点,随着楼层警报的响起,演练活动正式拉开帷幕。演练人员迅速从就近的楼层疏散通道撤离,楼层引导人员负责疏散指挥,提醒师生有序靠右快速撤离,确保疏散过程安全有序。所有人员撤离下楼后,疏散引导组清点人员,组并向总指挥汇清点情况

3.校微型消防站的工作人员向师生们详细讲解了干粉灭火器的使用方法,并进行了模拟灭火演练

预案适宜性充分性评审

适宜性: R全部能够执行  £执行过程不够顺利   £明显不适宜

充分性: R完全满足应急要求  £基本满足需要完善 £不充分,必须修改  

演练效果评审

人员到位情况

£迅速准确 R基本按时到位 £个别人员不到位 £重点部分人员不到位

职责明确,操作熟练 £职责明确,操作不熟练 £职责不明,操作不熟练

物资到位情况

现场物资:R现场物资充分,全部有效  £现场准备不充分 £现场物资严重缺乏

个人防护:£全部人员防护到位  R个别人员防护不到位

£大部分人员防护不到位

协调组织情况

整体组织:  £准确、高效 R协调基本顺利,能满足要求£效率低,有待改进

抢险组分工:£合理、高效 R基本合理,能完成任务

£效率低,没有完成任务

实战效果评价

£达到预期目标 R基本达到目的,部分环节有待改进

£没有达到目标,须重新演练

存在问题和

改进措施

一、存在问题

1、在实战演练过程中发现一些教职工及学生对安全出口疏散指示灯、楼宇安全疏散路线没有了解和认知。

2、部分教职工及学生对灭火器使用技巧掌握不到位。

二、改进措施

1、结合实际,开展多种形式的消防宣传教育培训,提高员工防火灭火技能。加强消防法规、防火灭火知识的学习,熟悉了解消防设施器材的性能和使用方法,做到会报火警、会扑救初起火灾、会组织人员疏散等。尤其要抓好新生及教师群体的岗前消防培训。

2、按照消防法律法规的有关要求,开展定期防火检查,并做好检查记录。检查的重点是:安全疏散通道、应急照明和安全出口以及灭火器材配置情况。

总指挥:               评估人:          记录人:

附件2:演练器材

应急疏散器材登记表


序号

器  材  名  称

个数

位置

责任人

备注

1

干粉灭火器

20

北区7号宿舍楼侧边空地

吴祥俊


2

火桶

3

北区7号宿舍楼侧边空地


3

对讲机

6

各楼层


4

哨子

10

各楼层


5

湿纸巾帕

200


















附件3

关于灭火、应急疏散演练通知

各处室、各系(院、部)、中心、馆

为切实增强全校师生的消防安全意识,提高火灾应急处置和自救互救能力,我校将于20241016组织开展灭火、应急疏散演练。现将有关事项通知如下:

一、演练时间

20241016日下午1400

二、演练地点

旗山校区图书馆

三、参与人员

保卫处、图书馆全体人员、在馆学生、新进教师、保安和物业等驻校服务人员

四、演练内容

应急疏散演练

1.模拟火灾发生场景,启动火灾报警系统。

2.拉闸断电,师生按照预定的疏散路线,迅速、有序地撤离到安全地点。

3.各疏散引导组负责引导师生疏散,确保疏散过程安全、有序。

灭火演练

1.由专业人员讲解灭火器的使用方法、灭火技巧及注意事项。

2.师生代表进行实际操作,亲身体验灭火过程。


五、注意事项

1. 请各部门、各学院提前做好演练宣传和组织工作,确保全体师生知晓演练时间、地点和内容。

2. 演练期间,可能会有警报声、烟雾等情况,请师生不要惊慌,保持冷静,按照疏散指示标志和工作人员的引导进行疏散。

3. 为确保演练安全,请勿在演练现场嬉笑打闹、拥挤推搡。

4. 请师生提前熟悉图书馆的疏散路线和安全出口位置。

5. 演练结束后,各单位要对演练情况进复盘扬长避短,及时整改。

特此通知。


保卫处 图书馆

2024108


15页共15